唐人阁论坛信息

設為首頁 插手保藏
 干油潤滑部位
單線式集合光滑體系先容
雙線式集合光滑體系先容
電動光滑泵
 
手(腳)動光滑泵
 
加油泵
 
氣動泵
 
雙線分派器
 
單線分派器
 
壓力支配、節制、換向閥及其附件
 
 稀油滑膩局部性
稀油集合光滑體系設想先容
稀油光滑裝配及稀油站
 
高(低)壓稀油站
 
稀油光滑元件
 
 鋼管扣件身體局部
 
 油氣區光滑細膩局布
油氣光滑體系設想先容
油汽油亮制度的形勢
 
油汽光面風險管理體系終產物
 
 電氣開關合理部位
 
 
DRB-L系列電動光滑泵(20MPa)

一、詳述
DRB-L系列電動光滑泵合用于光滑點多,散布規模廣,給油頻次高的雙線式干油集合光滑體系。經由過程雙線分派器向光滑部位供送光滑脂,可知足各類機械裝備的須要,對大型機組和出產線尤其適合。
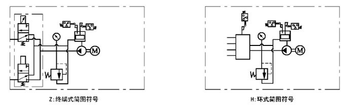
該系列電動光滑泵可構成雙線環式集合光滑體系,即體系的主管路構成環狀安排,由前往光滑泵的主管道末真個體系壓力來節制液壓換向閥,使兩條主管道瓜代地供送光滑脂的集合光滑體系;見形狀圖和形狀尺寸表的劃定。也可構成雙線終端式集合光滑體系,即由主管道末真個壓力支配閥來節制電磁。換向閥瓜代地使兩條主管道供送光滑脂的集合光滑體系,也見形狀圖和形狀尺寸的劃定。
該系列電動光滑泵接納雙柱塞機構,運行靠得住,加速機構置于泵體內,布局松散,體積小,配以響應的電控箱能夠完成主動節制。

二、學手藝技術參數
型號
公稱壓力MPa
公稱流量
貯油器
配管體例
機電型號
電念頭功率kW
加速比
轉速r/min
加速器光滑油量L
分量kg
規范型號
引進型號
ml/min
容積L
DRB-L60Z-H
U-25AL
20
60
20
環式
A02-7124
0.37
1:15
100
1
140
DRB-L60Z-Z
U-25AE
終端式
160
DRB-L195Z-H
U-4AL
195
35
環式
Y802-4
0.75
1:20
75
2
210
DRB-L195Z-Z
U-4AE
終端式
230
DRB-L585Z-H
U-5AL
585
90
環式
Y90L-4
1.5
5
456
DRB-L585Z-Z
U-5AE
終端式
416
利用介質為錐入度不低于265(25℃,150g)1/10mm的光滑脂(NLGI0#-2#)。
 
DRB-L類型電動式圓滑泵線條寬度
型號
L
B
H
L1
L2
L3
L4
B1
B2
B3
B4
DRB-L60Z-H
640
360
986
500
70
126
290
320
157
23
42
DRB-L60Z-Z
780
640
450
200
160
DRB-L195Z-H
800
452
1056
600
100
125
300
420
226
39
42
DRB-L195Z-Z
891
800
500
160
DRB-L585Z-H
1160
585
1335
860
150
100
667
520
476
244
111
DRB-L585Z-Z
667
239
160
 
型號
B5
B6
H1
H2
H3
H4
D
d
地腳螺栓
最大
最小
DRB-L60Z-H
118
20
598
155
60
130
-
269
14
M12x200
DRB-L60Z-Z
-
85
DRB-L195Z-H
118
16
687
167
83
164
-
319
18
M16x400
DRB-L195Z-Z
-
108
DRB-L585Z-H
226
22
815
170
110
248
277
457
22
M20x500
DRB-L585Z-Z
-
135
-
 
三、具體型號聲明范文                            
          
四、圖型標記
 
 
五、接到線唆使
 
六、目標哲理
該系列電動光滑泵由柱塞泵、貯油器、換向閥、電念頭等局部構成。柱塞泵在電念頭的驅動下,從貯油器吸入光滑脂,壓送到換向閥,經由過程換向閥瓜代地沿兩個出油口保送進來,當一個出油口壓送光滑脂時,另外一出油口與貯油器接通卸荷。
環式布局電動光滑泵配用液壓換向閥,有四個接口,外接兩根供油主管別離由兩根供油管引回的回油管,依托回油管內油脂的油壓鞭策換向閥換向。
終端式布局電動光滑泵配用電磁換向閥,有二個接口,外接二根供油主管,依托電磁鐵的得失電完成換向供油。
柱塞泵換向閥的舉措道理詳見利用申明書。
 
七、巧用表明
1、該系列電動光滑泵應裝置在情況溫度適合,塵埃少,振動小,便于調劑、查抄、保護頤養及補脂便利的處所并且盡能夠安排在體系的中間地位,延長體系配管長度,堅持最低壓力降,使泵能發生足以降服光滑點阻力的壓力。
2、利用前先向柱塞泵的加速腔內插手N220的產業齒輪油至油標劃定液面。
3、向貯油器內補脂利用DJB-V70型電動加油泵從光滑泵的補給口補進,利用的光滑脂應潔凈,不許可同化有污物。
4、光滑泵的反轉展轉標的目的是單向的,利用時必須按機電上旋向牌劃定的旋向接線利用。
5、泵溢流閥的規范設定壓力為23MPa,能夠在0~20MPa規模內肆意調理,在利用時不許可跨越泵公稱壓力的15%(23MPa)。
6、環式光滑泵的液壓換向閥的設定壓力按5MPa調定。
7、該系列電動光滑泵為室內裝置型,在室外或情況卑劣的場所利用時,必須采用防護辦法。
 
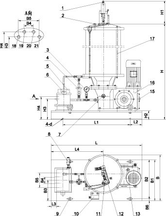
八、尺寸圖
DRB-L60Z-H、DRB-L195Z-H型電動泵形狀圖                     DRB-L585Z-H型電動泵形狀圖
 
DRB-L60Z-Z, DRZB-L195Z-Z型電動泵形狀圖                     DRB-L585Z-Z型電動泵形狀圖
 
九、定貨需知
1、本系列電動光滑泵配用以下四種情勢規范電控箱,可按照差別節制請求挑選。
1.1 DEA-2E型終端式電控箱
1.2 DEA-2L型環式電控箱
1.3 R1902型環式帶補脂節制電控箱
1.4 R1904型終端式帶補脂節制電控箱
2、本系列電動光滑泵分部件訂購按下表選型
 
Copyright © 2012 上海玖仟光滑裝備無限公司 公司地點:上海市寶山區河曲路118號 辦公地點:上海市寶山區殷高路16弄2號1003室
德律風:021-35365056 35365057 傳真:021-23025976 網址:www_hzauxi_com.lpzsa.cn E-mail:shanghai9000@126.com